El Ayuntamiento de Barcelona ha aprobado la convocatoria para optar a 36 pisos públicos de alquiler en la Ronda Sant Pau, 46, como parte del proyecto vinculado al histórico Gimnasio Social Sant Pau. Las viviendas, de 1 y 2 habitaciones, tendrán un alquiler de 6,6 euros por metro cuadrado, lo que supone un pago mensual de entre 356 y 396 euros.
Detalles de las viviendas y requisitos de acceso
Las viviendas tienen superficies entre 54 y 60 metros cuadrados y estarán gestionadas por la Fundación Hàbitat3. Para entrar en el sorteo, los interesados deberán cumplir ciertos requisitos. De los 36 pisos, 25 se adjudicarán por sorteo a través de la Bolsa de Vivienda y 11 se reservan para personas en situación de vulnerabilidad.

Proceso de sorteo y adjudicación
El sorteo se llevará a cabo durante el mes de junio y la convocatoria se abrirá en las próximas semanas en la web del Institut Municipal de l'Habitatge i Rehabilitació de Barcelona (IMHAB). Las 25 viviendas que se sortearán se repartirán con cuotas reservadas para colectivos concretos.

Requisitos para optar a los pisos sociales
Los interesados deberán cumplir los siguientes requisitos:
- Ser mayor de edad
- Residir en el municipio de Barcelona
- No ser propietario de una vivienda en España
- No haber obtenido una vivienda pública en alquiler en los últimos 5 años
- Cumplir con los límites de ingresos establecidos
El proyecto y su contexto
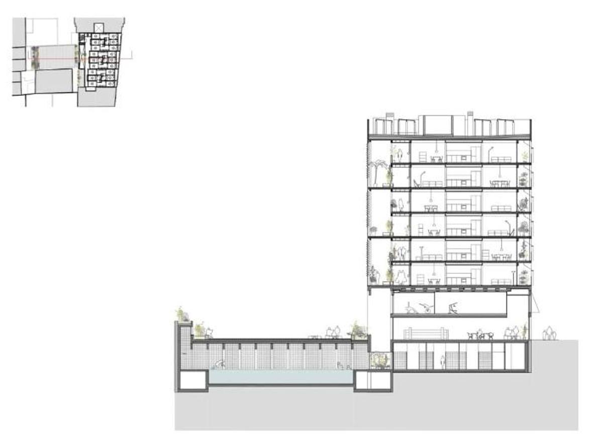
El proyecto surge tras la lucha vecinal vinculada al histórico Gimnasio Social Sant Pau, que funcionó como una cooperativa sin ánimo de lucro ofreciendo servicios a personas vulnerables. El Ayuntamiento logró comprar el solar por un precio inferior y ahora se han construido 36 pisos sociales que convivirán con la actividad del Gimnasio, renovado y ubicado en las plantas inferiores del edificio.
Características del Gimnasio Social Sant Pau
Las instalaciones del Gimnasio se han reformado y contarán con una renovada piscina, jacuzzi y sala de actividades dirigidas. Continuará ofreciendo servicios básicos como duchas o soporte social a personas en situación de vulnerabilidad.
Próximos pasos y plazos
La construcción de la promoción de pisos de protección oficial comenzó en abril de 2024 y finalizará en junio de 2026. El sorteo de las viviendas debería celebrarse en junio de 2026.
Temas relacionados
Crítico Cultural
Crítico cultural y escritor. Colaborador habitual en medios literarios.
¿Te ha gustado este artículo?
Suscríbete a nuestro boletín y recibe las mejores noticias en tu correo cada día.





